The Pidellerie, house in the heart of the Loire castles | House in Véretz

3 Bedroom House in Veretz, Véretz
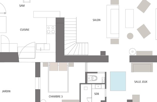
On the ground floor, large living room of 70m² with a large fireplace, the bright, contemporary kitchen offers a beautiful view of the garden, the dining room overlooks a private courtyard and terrace.
In the wooden extension, a bedroom, a toilet and a bathroom can accommodate comfortably a couple, a sofa bed in the TV room can offer an additional bed if necessary.
Upstairs, a master bedroom with ensuite bathroom and a children's room with two single beds.
This house is our family home, we just finished the renovation, we hope you like it as much as us. We share the garden (3500m) with my parents; and we chose not to close; the path and courtyard are private.
However, you well - safe access to the garden, where you will find children's games (trampoline, swing).
A table for 6 people can take their meals outside in the private course. Barbecue and garden furniture also
The Pidellerie, house in the heart of the Loire castles is located in Veretz. The Pidellerie, house in the heart of the Loire castles provides accommodation, featuring Balcony/Terrace, Bedding/Linens, Child Friendly, among other amenities. This House features Balcony/Terrace, Bedding/Linens, Child Friendly, to make your stay a comfortable one.
The Pidellerie, house in the heart of the Loire castles has 3 Bedrooms , 2 Bathrooms, and max occupancy of 7 people. The minimum rental for this property is 1 nights, but this can change depending on the season you plan on staying. Previous guests have given good rated it, and VRBO labeled it a top-rated House because of the excellent services rendered by the owner or manager of this House, and has consistently provided great experiences for their guests. Most families or guests that use it recommend it to their friends and some of them are repeat guests. House has a friendly neighborhood, and the Veretz has interesting places to visit. If you want to learn more about the House in Veretz, such as places to visit and things to do nearby, you can check below to learn more.
Amenities
Facility Overview
-
Heating
-
2 bathrooms
-
Hair dryer
-
Shower
-
Soap
-
Toilet paper
-
Towels provided
-
Dining table
-
3 bedrooms
-
Bed sheets provided
-
Sofa bed
-
Fireplace
-
Living room
-
Coffee/tea maker
-
Cookware/dishes/utensils
-
Dishwasher
-
Electric kettle
-
Microwave
-
Oven
-
Refrigerator
-
Stovetop
-
Toaster
-
Washing machine
-
Car required
-
No pets allowed
-
Smoke-free property
-
Winery tours nearby
-
Games
-
TV
-
Sleeps 7
-
Unit size: 1615 sq ft (150 sq m)
-
English
-
French
-
In a rural location
-
Near a zoo
-
Children's books
-
Children's games
-
Highchair
-
Playground
-
Trampoline
-
Travel crib
-
Iron/ironing board
-
Limited housekeeping
-
Free WiFi
-
Barbecue grill
-
Garden
-
Outdoor furniture
-
Patio
-
Terrace
-
First aid kit
-
Smoke detector
Policies
Reviews
FAQ's
Is this Veretz house pet-friendly for guests?
No, pets are not allowed at this property. Check the guest reviews to learn what guests had to share.
Does the Veretz house have a swimming pool?
No, this Veretz house does not have a swimming pool. Check the Facility Overview section for details about the pool and other available facilities.
How much does it cost per night to stay in Veretz house?
Best-rates for the Veretz house starts from $185 per night with includes TV, Balcony/Terrace, Bedding/Linens, Child Friendly, Internet, Kitchen, Laundry with all other facilities. Hotala.com.au matches every traveler with their perfect hotel, resort, or rental and whether you are traveling with a group, friends, family, or pets.
Is Veretz house a family-friendly place to stay?
Based on the information we have received from the owner or our partner, this is considered to be a family-friendly property. Families have rated this house Good or guests have recommended them suitable for families. As reported by the owner or manager, the house has specified that children are welcome. Please see details about suitability for your family or inquire with the property to learn more.
Is the Veretz house wheelchair accessible or offer services for disabled guests?
Based on the information received from our partner, the Veretz house has not specified they are wheelchair accessible. Likewise, there is not an elevator specified as being available at the property. Specific accessibility details may be addressed in the property details section of this page.
What is the minimum night stay policy for the Veretz house?
Based on the information reported by the owner or manager, the Veretz house indicates 1 day stay policy at this house. Guests are cautioned that the minimum stay policy may differ based on seasonality or availability and may be at the discretion of the owner or manager.
What cancellation policy is in place for Veretz house?
Based on the information reported by the owner or manager, details for the cancellation policy for the Veretz house are as follows: Cancellation policy Guests are cautioned that the cancellation policy may differ based on seasonality, availability, or current travel restrictions. Guests should also be aware that this policy may be subject to change and should be confirmed prior to booking. More details may be available on this page in the property description. However, early check-in or late check-out can sometimes be negotiated between the guest and the owner or the manager of this property.